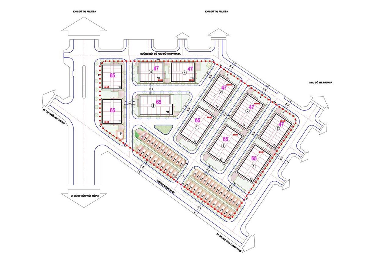
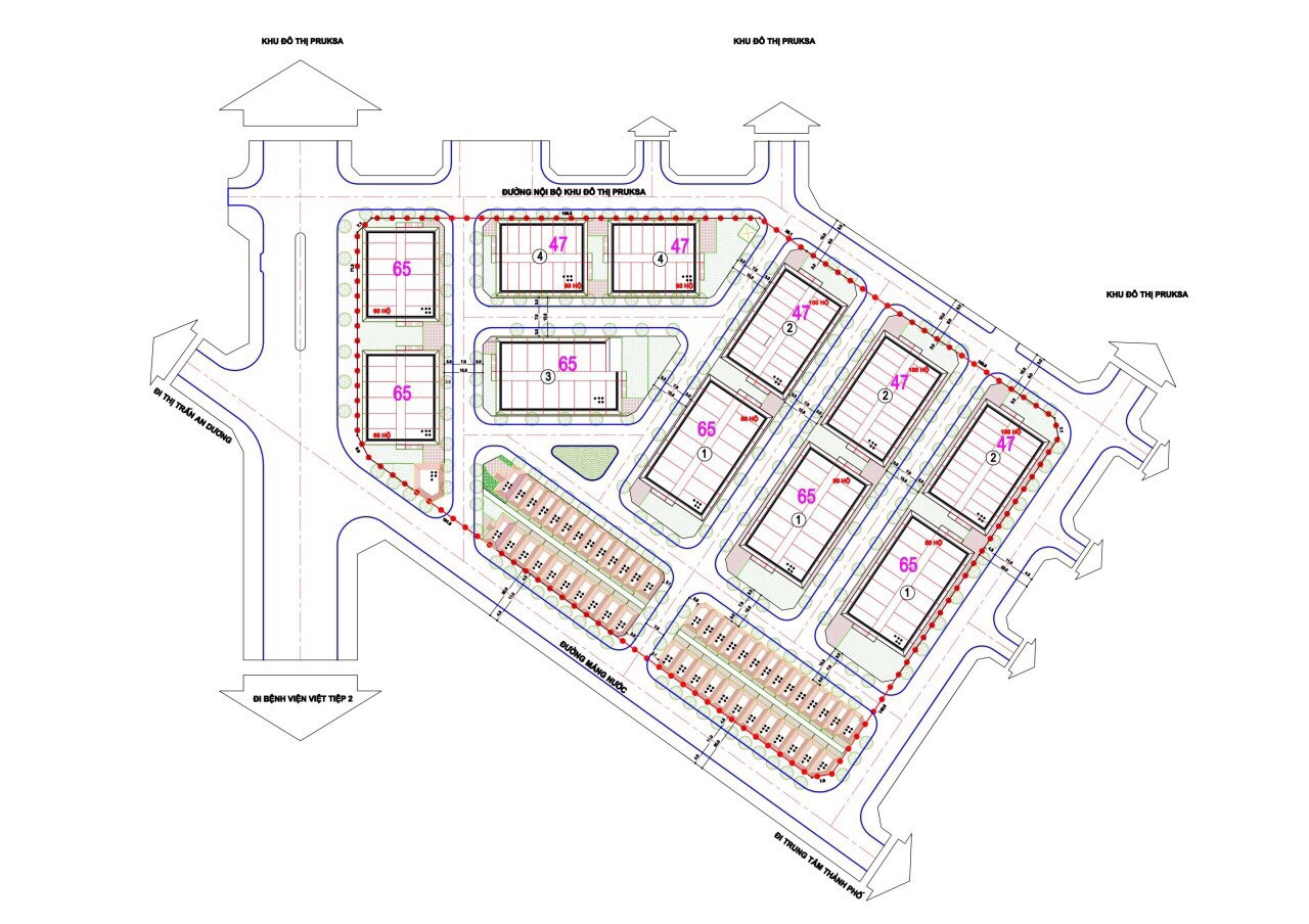
TIỆN ÍCH DỰ ÁN HOÀNG HUY NEW PRUKSA TOWN
Điểm may mắn của chung cư Hoàng Huy New Pruksa Tower là ở giai đoạn 1 của dự án đã rất thành công nên nhiều người biết đến. 
- Tiên ích ngoại khu: dự án nằm tại vị trí đắc địa có thể dễ dàng di chuyển bằng tất cả các phương tiện đến các tiện ích xung quanh, điển hình:
Từ chung cư Hoàng Huy đi tới nhà hát lớn thành phố Hải Phòng chỉ mất 10 phút
Đi siêu thị metro từ Pruksa Town 5 tầng.
Kết nối dễ dàng với Viện Tiệp 2.
Đặc biệt chung cư Hoàng Huy lô mới 5 tầng là lựa chọn số 1 cho các chuyên gia và nhân viên Hàn Quốc, Trung Quốc vì chỉ cách KCN Tràng Duệ có 5km, không gian sống ở đây rất được yêu thích bởi người nước ngoài, giá cả cho thuê rất cao.
- Tiện ích nội khu:
Dự án New Pruksa Hoàng Huy sở hữu tiện ích có sẵn của khu vực xung quanh.
Hệ thống trường học liên cấp xung quanh dự án, đảm bảo sự thuận tiện cho việc học tập của con em quý cư dân.
Trung tâm thương mại sầm uất, năng động.
Khu vui chơi trẻ em an toàn, lành mạnh.
Trường mầm non đạt chuẩn quốc gia.
Khu thể dục thể thao rộng lớn, tách biệt.
Công viên cây xanh, đường dạo bộ thông thoáng và các công trình phụ trợ.
Giao thông nội khu thuận lợi để di chuyển đến các khu vực.
Bãi đỗ xe rộng lớn, đáp ứng nhu cầu gửi xe của cư dân.
.jpg)
Dự án New Pruksa Hoàng Huy hướng tới cuộc sống đầy đủ, giá trị mang lại nhiều tiềm năng về giá và cho thuê. Dự án mở ra một cơ hội đầu tư, kinh doanh bất động sản với chi phí hợp lí. Hứa hẹn sẽ góp phần tạo nên điểm nóng cho thị trường bất động sản của thành phố Đất Cảng.
Nguồn: http://haiphonghomes.vn/